物件No.C037  貸店舗・貸事務所(区分)

晩翠ウィングビル

177,100 (+管理費 44,850)

161
161,000
-
022-267-5571

お電話の際は「ホームページを見て」とお伝えください

晩翠通リ面すビル 1階に郵便局が入居しています! 都市ガス 写真は分割前の写真になっております。 業種などはご相談ください。近くにスーパーやコンビニなどがあり便利です。
晩翠通リ面すビル 1階に郵便局が入居しています! 都市ガス 写真は分割前の写真になっております。 業種などはご相談ください。近くにスーパーやコンビニなどがあり便利です。

基本情報

賃料・費用

177,100 (+管理費 44,850)

161万円
16万1,000円
-
間取り・専有
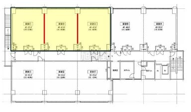
49.43㎡
住所
交通
仙台駅(徒歩28分)
北四番丁駅(徒歩8分)
築年月
築28年(1998年3月)
駐車場
有り 4万4,000円/台 空き2台

出店おすすめ業種

※出店不可業種:

飲食全般不可

設備・特徴

建物設備・特徴
エレベーター
立地
幹線道路沿い
セキュリティ
24時間セキュリティー
特徴
スケルトン 男女別トイレ(共用部)
その他
テナント 仙台駅北部エリア

物件概要

階数
2階/地上10階建
専有面積
14.95坪 (49.43㎡)
所在地
宮城県仙台市青葉区木町通1丁目6-32
構造
鉄骨鉄筋コンクリート(SRC)造
契約期間
普通借家
引渡し時期
相談
入居歴
あり
出店可能業種
医療、教育・スクール、事務所
出店不可業種
飲食全般不可
取引態様
媒介(客付)
物件No.
C037
事務所向き テナント向き 賃貸保証契約加入必須 仙台駅北部エリア

費用詳細

賃料
17万7,100円
敷金
161万円
礼金
16万1,000円
仲介手数料
17万7,100円
管理費/共益費
4万4,850円
駐車場
有り

駐車可能台数: 2台

料金: 4万4,000円/台

備考: 2台で44,000円

看板使用料
2万2,000円
電話でお問合せ

022-267-5571

営業時間 10:00~18:00(土日祝日定休)